Trilocale in vendita

Badesi, Via Dettori
€ 39.000
3 locali 3 locali
50 Mq 50 Mq
1 bagno 1 bagno

Trilocale in vendita

Badesi, Via Dettori

Descrizione annuncio

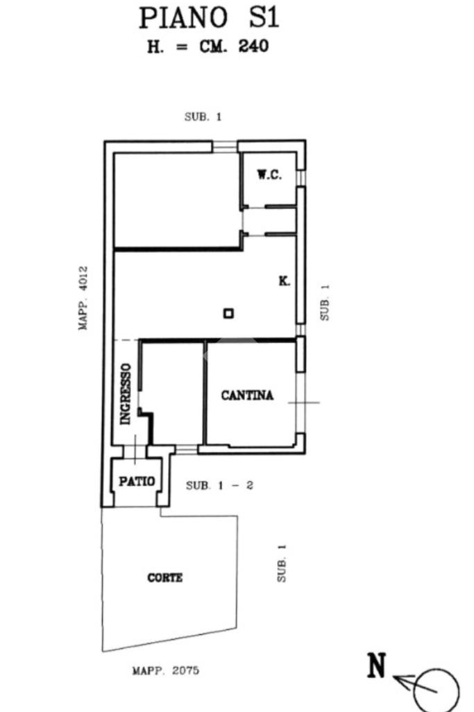
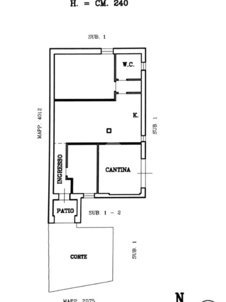
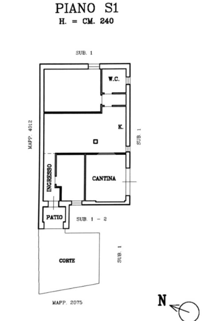
Badesi – Via Dettori In una zona tranquilla e riservata di Badesi, a pochi minuti dal centro abitato e dalle rinomate spiagge della costa nord della Sardegna, proponiamo in vendita un ampio seminterrato con spazi generosi e notevoli possibilità di personalizzazione. L’immobile si sviluppa su un’unica superficie e comprende una camera da letto, una seconda stanza adatta a studio o ambiente ospiti, un bagno e una vasta zona open space, ideale per la realizzazione di una zona giorno moderna e funzionale. Gli ambienti interni, ampi e ben proporzionati, sono illuminati da finestre a bocca di lupo che garantiscono una buona luminosità naturale e ventilazione. Completa la proprietà un comodo garage adiacente, con accesso diretto, che rappresenta un ulteriore valore aggiunto sia in termini di praticità sia come spazio utile da destinare a rimessa, deposito o laboratorio. L’immobile necessita di interventi di ristrutturazione, rifacimento delle finiture e ottimizzazione della distribuzione interna, ma costituisce una solida base per la creazione di una residenza confortevole e su misura. Ideale come abitazione principale, casa vacanze o investimento da mettere a reddito, questa proprietà offre l’opportunità di vivere o soggiornare in un contesto riservato e autentico, a pochi passi dal mare e immersi nella tranquillità.

Mostra tutto

Nelle vicinanze

Trasporto pubblico Trasporto pubblico
Trasporto pubblico
190 m
Farmacia Farmacia
Farmacia
190 m
Supermercati Supermercati
Superconcas
290 m
LD Market
440 m
Negozi Negozi
Negozi
130 m
Ristoranti Ristoranti
Il Scalitti
200 m
Sapori di Gallura
820 m
K18
930 m
Mostra tutto

Caratteristiche

Rif.:
61116809
Piano:
Terra di 3
Totale piani:
3
Terrazzi:
1
Camere da letto:
2
Arredamento:
Completo
Mostra tutto
Prezzo Prezzo
€ 39.000
Rata mutuo Rata mutuo
€ 180 / mese
Spese annue Spese annue
€ 0
Proponi il tuo prezzoProponi il tuo prezzo

Classe Energetica

G
G
G
G
G
G
G
G
G
Anno di costruzione:
2000
Riscaldamento:
Autonomo
Tipo impianto:
Ad aria
Tipo alimentazione:
Aria

Ti interessa visionare l'immobile?

Fissa un appuntamento  Fissa un appuntamento

Richiedi informazioni

* Questi campi sono obbligatori

Calcola il tuo mutuo

Semplice e senza impegno
Anticipo

( % )
Mutuo

( % )

pochi semplici passi

inserisci i tuoi dati
Questionario completato
Grazie per aver richiesto un appuntamento senza impegno con un nostro Consulente del Credito e Assicurativo.

Hai inserito correttamente tutti i dati necessari e a breve riceverai una e-mail con un link da convalidare per inviare i tuoi dati.
Affiliato
Studio Badesi Trinita' Srl
Via Nazionale, 20 07030 Badesi (SS)

Il nostro staff


  • Daniele Piredda
    Collaboratore

  • Claudia Sanna
    Coordinatrice

  • Simona Suzzarellu
    Collaboratrice

  • Laura Pireddu
    Affiliata
Via Nazionale, 20 07030 Badesi (SS)
Zona: BADESI-TRINITA' D'AGULTU E VIGNOLA
Mostra su mappa
Affiliato
Studio Badesi Trinita' Srl
Via Nazionale, 20 07030 Badesi (SS)

2025 Tecnocasa Franchising S.p.A. - P. IVA 08365160152 - Via Monte Bianco 60/A 20089 Rozzano (MI). Ogni agenzia ha un proprio titolare ed è autonoma. Privacy policy | Policy utilizzo | Cookie policy