Trilocale in vendita

Viddalba, La Capazza
€ 89.000
3 locali 3 locali
50 Mq 50 Mq
1 bagno 1 bagno

Trilocale in vendita

Viddalba, La Capazza

Descrizione annuncio

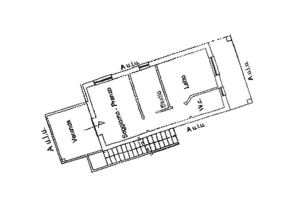
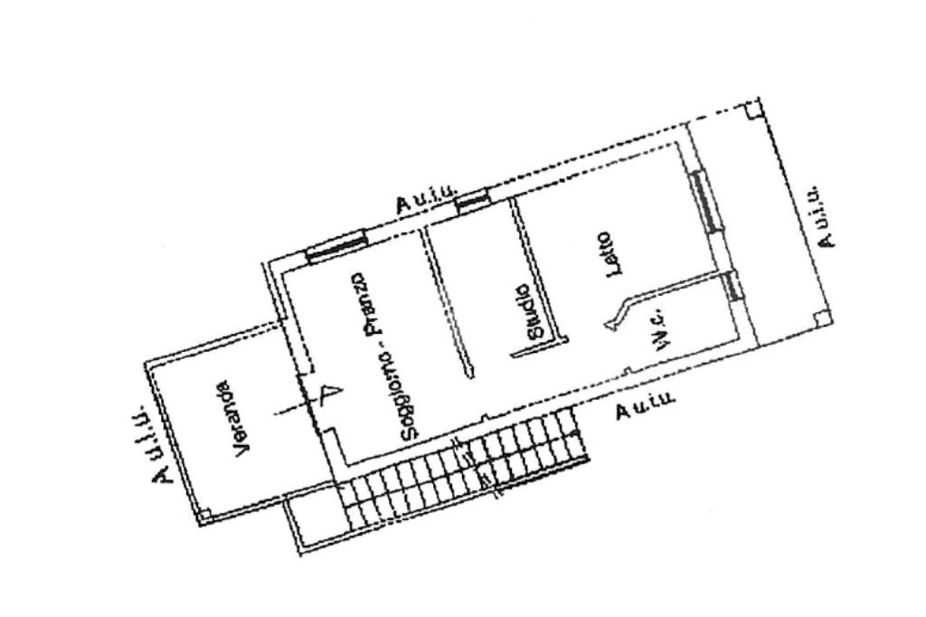
VIDDALBA - RESIDENCE LA CAPAZZA In un contesto tranquillo e riservato, immerso nella natura, proponiamo in vendita un accogliente appartamento situato al primo piano di un residence con piscina in località La Capazza, nel comune di Viddalba, a pochi chilometri dalla splendida spiaggia di Baia delle Mimose. L’immobile si trova in un ambiente particolarmente silenzioso e verdeggiante, ideale per chi desidera relax, privacy e un autentico contatto con la natura. La proprietà è arricchita da un ampio giardino privato, perfetto per trascorrere piacevoli momenti all’aperto e organizzare pranzi e cene grazie alla presenza di un’area barbecue. Dal giardino, tramite una scala esterna, si accede al terrazzo, uno spazio luminoso e accogliente che introduce all’abitazione. Gli interni sono organizzati in modo funzionale: dall’ingresso si accede alla zona giorno con cucina a vista; un disimpegno conduce poi alla stanza studio, ideale come spazio di lavoro o cameretta, al bagno e alla camera da letto matrimoniale. Quest’ultima dispone di un terrazzo con affaccio sul verde, che garantisce tranquillità e riservatezza. Il residence è ben curato e offre l’utilizzo della piscina condominiale, rendendo questa soluzione ideale sia come casa vacanze sia come investimento per locazioni turistiche. La proprietà dispone inoltre di un comodo posto auto riservato all’interno del residence. Una proprietà perfetta per chi desidera vivere la Sardegna tra mare e natura, in un contesto riservato ma a breve distanza dalle spiagge più belle della zona.

Mostra tutto

Caratteristiche

Rif.:
61187273
Piano:
1 di 1 (Piano basso)
Posti auto:
1
Terrazzi:
2
Camere da letto:
2
Arredamento:
Completo
Mostra tutto
Prezzo Prezzo
€ 89.000
Rata mutuo Rata mutuo
€ 422 / mese
Spese annue Spese annue
€ 800
Proponi il tuo prezzoProponi il tuo prezzo

Classe Energetica

G
G
G
G
G
G
G
G
G
Anno di costruzione:
2007
Riscaldamento:
Autonomo
Tipo impianto:
Ad aria
Tipo alimentazione:
Aria

Ti interessa visionare l'immobile?

Fissa un appuntamento  Fissa un appuntamento

Richiedi informazioni

Clicca su Leggi per aprire l'informativa
* Questi campi sono obbligatori

Calcola il tuo mutuo

Semplice e senza impegno
Anticipo

( % )
Mutuo

( % )

pochi semplici passi

inserisci i tuoi dati
Questionario completato
Grazie per aver richiesto un appuntamento senza impegno con un nostro Consulente del Credito e Assicurativo.

Hai inserito correttamente tutti i dati necessari e a breve riceverai una e-mail con un link da convalidare per inviare i tuoi dati.
Affiliato
Studio Badesi Trinita' Srl
Via Nazionale, 20 07030 Badesi (SS)

Il nostro staff


  • Daniele Piredda
    Collaboratore

  • Claudia Sanna
    Collaboratrice

  • Antonella Sanna
    Coordinatrice

  • Simona Suzzarellu
    Collaboratrice

  • Laura Pireddu
    Affiliata
Via Nazionale, 20 07030 Badesi (SS)
Zona: BADESI-TRINITA' D'AGULTU E VIGNOLA
Mostra su mappa
Affiliato
Studio Badesi Trinita' Srl
Via Nazionale, 20 07030 Badesi (SS)

2026 Tecnocasa Franchising S.p.A. - P. IVA 08365160152 - Via Monte Bianco 60/A 20089 Rozzano (MI). Ogni agenzia ha un proprio titolare ed è autonoma. Privacy policy | Policy utilizzo | Cookie policy